Un nouveau centre de logistique est actuellement en cours de construction au Chemin de Praz-Roussy, dans le secteur de Vernand.
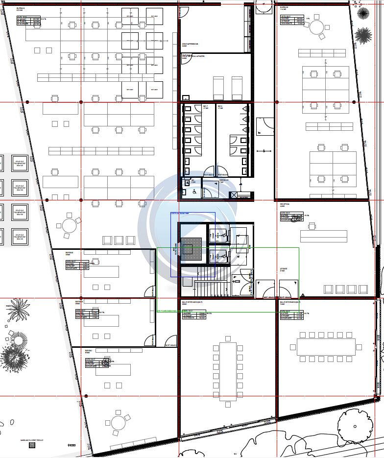
Une surface administrative de 800 m2 située au 2ème niveau du bâtiment sera mise en location dès le printemps 2027.
Ce nouvel immeuble est pensé pour répondre aux besoins actuels des entreprises. Il propose des espaces de travail flexibles, lumineux et confortables.
Il s'agit d'une opportunité idéale pour des entreprises recherchant un environnement moderne, adaptable et bien connecté.
Les surfaces sont entièrement modulables et fractionnables selon les besoins du/des preneurs (open-space, bureaux cloisonnés, salles de réunion, etc.). Il est possible de louer le plateau complet ou des surfaces partielles.
Des espaces communs de qualité seront mis à disposition pour favoriser la convivialité et les synergies entre entreprises : cafétéria, zone de détente, terrasse, coin lounge, sanitaires, etc.
Le bâtiment bénéficie d'une situation stratégique à proximité des axes routiers, autoroutiers et des transports publics.
Des places de parc intérieures pourront être mises à disposition.
Prix de location : CHF 270.00/m2/an + charges.
Durée du bail à loyer : à définir en fonction du type d'activité.
Pour toute demande de renseignement ou de visite : M. Francis Gonzalez / Léguriviera / 079/321.38.43 / fgonzalez@leguriviera-groupe.ch
SURFACE COMMERCIALE À LOUER AU SEIN D'UNE NOUVELLE CONSTRUCTION
CH-1032 Romanel-sur-Lausanne, Chemin de Praz-Roussy
| Loyer | CHF 270.-/m²/an |
| Charges | Non comprises |
Descriptif
Commodités
Environnement
○ Zone industrielle/commerciale
○ Verdoyant
○ Commerces
○ Gare
○ Arrêt de bus
○ Entrée/sortie autoroute
Extérieur
○ Terrasse(s)
○ Verdure
Intérieur
○ Ascenseur
○ Parking souterrain
○ Lumineux
Equipement
○ Cafétéria
Etat
○ En construction
Ensoleillement
○ Favorable
Style
○ Moderne
Caractéristiques
Catégorie
Local commercial
Référence
#5854289
Année de construct.
2027
Disponibilité
Printemps 2027
Niveau
2ème étage
Parking disponible
Oui, optionnel




